​农村化粪池正确施工方法(农村施工队推脱不做的化粪池原来这么简单)

时间:2025-10-01 00:14

来源:生活八卦网

点击:

农村化粪池正确施工方法(农村施工队推脱不做的化粪池原来这么简单)

都说在农村建房好,可以建自己喜欢的,造价不高一家人都可以住在一起。但是在农村生活有个很大的问题就是,农村没有下水道,建了小洋房总不能还用旱厕吧。

农村化粪池正确施工方法(农村施工队推脱不做的化粪池原来这么简单)(1)

其实这个问题很好解决,花几百块做个化粪池就行了,今天新型房屋就来教教大家怎么给自家砌一个好用的化粪池。

农村化粪池正确施工方法(农村施工队推脱不做的化粪池原来这么简单)(2)

首先,在水电设计时,注意污废分流,将厕所的污水排入化粪池,洗澡和洗碗所用的废水则另外排放。在屋前后选个位置挖个渗水井,接上水管排到渗水井里了,这样一切废水都流入渗水井了,又干净又卫生,然后我们就可以开始化粪池施工了!

农村化粪池正确施工方法(农村施工队推脱不做的化粪池原来这么简单)(3)

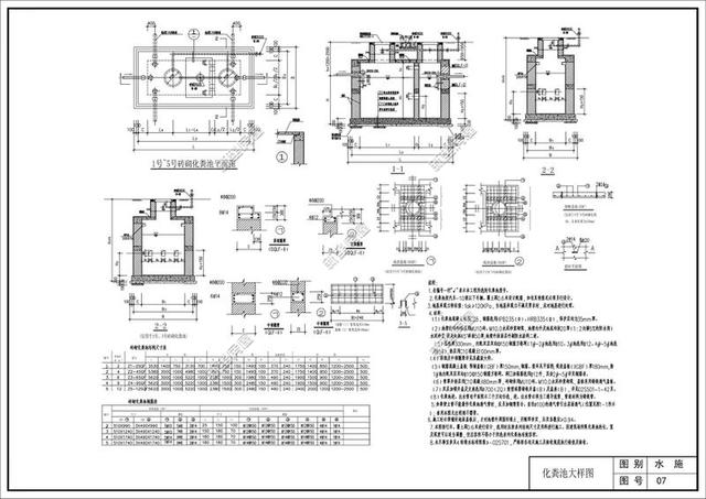
1.确定化粪池大小,一般来说农村家庭3~5人可选择砌筑长度2950mm,宽度1350mm,容积为2m³的化粪池。

农村化粪池正确施工方法(农村施工队推脱不做的化粪池原来这么简单)(4)

2.挖基坑,根据化粪池大小挖抗,底部用素混凝土找平。

农村化粪池正确施工方法(农村施工队推脱不做的化粪池原来这么简单)(5)

3.红砖按照2:1:3的大小砌筑三格化粪池,相连粪格之间安装好过粪管。

农村化粪池正确施工方法(农村施工队推脱不做的化粪池原来这么简单)(6)

4.一池和二池之间过粪管采用长度为70-75cm,内径为15cm的PVC管。

农村化粪池正确施工方法(农村施工队推脱不做的化粪池原来这么简单)(7)

5.抹灰做好防水,最后封盖处理,可以采用预制混凝土盖板。

农村化粪池正确施工方法(农村施工队推脱不做的化粪池原来这么简单)(8)

这种三格式化粪池是使用最普遍的,砌筑起来难度也不大,原理如下:

农村化粪池正确施工方法(农村施工队推脱不做的化粪池原来这么简单)(9)

第一格化粪池厌氧发酵,将粪便分解为粪液和粪渣。

第二格化粪池深度厌氧发酵,同时里面的游离氨浓度上升,可以起到杀菌杀卵的作用。

第三格化粪池主要起储粪作用,格内的粪水可作直接作为土地的肥料使用。

农村化粪池正确施工方法(农村施工队推脱不做的化粪池原来这么简单)(10)

如果有朋友觉得自己砌化粪池太麻烦的话,也可以直接购买成品化粪池,挖个坑直接埋进去就是,简单方便,价格一千多,满了的话直接叫取粪车拖走就是。

建房朋友们,化粪池的做法你们学会了吗?

关注本号,每天分享农村建房小知识,还有图纸分享。

,

相关阅读
​家里养的可以吃的虫子(家里种什么植物可以防蚊虫)

​家里养的可以吃的虫子(家里种什么植物可以防蚊虫)

家里养的可以吃的虫子(家里种什么植物可以防蚊虫) 我的东北老家就有这种宝贝 要说可以养殖又可以食用的虫子,在我们东北还真有,这种...

2025-10-01 00:11:55

​网红奶枣是什么口感(网红奶枣到底是什么)

​网红奶枣是什么口感(网红奶枣到底是什么)

网红奶枣是什么口感(网红奶枣到底是什么) 近年来,网络中兴起了很多网红小吃,目前流行且非常受欢迎的一款新晋网红小零食-奶枣,频...

2025-10-01 00:09:39

​男士古龙香水是什么味道好闻(男士香水就叫古龙水)

​男士古龙香水是什么味道好闻(男士香水就叫古龙水)

男士古龙香水是什么味道好闻(男士香水就叫古龙水) 近日某位对香水不了解的朋友,闻到我身上的香水味,问:”你用古龙水?” “没有...

2025-10-01 00:07:23

​健康行业做什么工作比较好(想做健康行业从哪方面入手比较好)

​健康行业做什么工作比较好(想做健康行业从哪方面入手比较好)

健康行业做什么工作比较好(想做健康行业从哪方面入手比较好) 大健康产业前景广阔,想做大健康产业从哪入手? 21世纪,大健康产业已...

2025-10-01 00:05:08

​婚前协议有没有效

​婚前协议有没有效

婚前协议有没有效 一、婚前协议有没有效 婚前协议是有没有效的,夫妻对婚姻关系存续期间所得的财产以及婚前财产的约定,对双方具有没...

2025-10-01 00:02:52

​和女生聊什么话题(和女生聊什么话题女生感兴趣)

​和女生聊什么话题(和女生聊什么话题女生感兴趣)

和女生聊什么话题(和女生聊什么话题女生感兴趣) 小伙伴们好丫,又见面啦~这里是小七。今天我们来聊一聊和女生聊什么话题 有哪些话...

2025-10-01 00:00:37

​养成系什么意思(字母圈养成系什么意思)

养成系什么意思(字母圈养成系什么意思) 养成是什么系现实什么圈养意思纯爱峰峻 界动报道: 俗话说长江后浪推前浪,用来形容年轻一代小...

2025-09-30 23:58:20

​退休以后,关系再好,也不要请这几种人吃饭,记住了

​退休以后,关系再好,也不要请这几种人吃饭,记住了

退休以后,关系再好,也不要请这几种人吃饭,记住了 图/来自网络,侵权请联系删除 退休以后,生命已经进入下半场,远离了职场上的是...

2025-09-30 23:56:05

​一拳超人吹雪的能力是什么(一拳超人龙卷和吹雪是什么关系)

​一拳超人吹雪的能力是什么(一拳超人龙卷和吹雪是什么关系)

一拳超人吹雪的能力是什么(一拳超人龙卷和吹雪是什么关系) 不请自来。 《一拳超人》中,为什么说最美的不是吹雪龙卷,而是路人甲?...

2025-09-30 09:15:40

​皮一点又蛮可爱的网名,总有一个你喜欢!

​皮一点又蛮可爱的网名,总有一个你喜欢!

皮一点又蛮可爱的网名,总有一个你喜欢! 女生沙雕可爱的网名非常符合现代年轻人的风格,表达了一种自我调侃、自嘲的态度。这个网名...

2025-09-30 09:13:24

​元气骑士的各种隐藏武器(被凉屋隐藏的辅助)

​元气骑士的各种隐藏武器(被凉屋隐藏的辅助)

元气骑士的各种隐藏武器(被凉屋隐藏的辅助) 元气不倒,伴你到老。hello大家好,我是可爱且魅力四射,迷人但不失风度的熊猫。 在《元...

2025-09-30 09:11:09

​女生夏日的3大尴尬瞬间,太太太可怕了

​女生夏日的3大尴尬瞬间,太太太可怕了

女生夏日的3大尴尬瞬间,太太太可怕了 好喜欢深圳夏天的傍晚呀,每日限定粉紫色的云☁️ 昨天回家特意买了新鲜的fafa,提升幸福感100...

2025-09-30 09:08:53

​女人婚后的幸福,不是管着男人,而是做以下的事

​女人婚后的幸福,不是管着男人,而是做以下的事

女人婚后的幸福,不是管着男人,而是做以下的事 走进婚姻的女人都希望和相爱的人白头到老,过着幸福的生活,为此会想尽办法经营婚姻...

2025-09-30 09:06:37

​海贼王,路飞最亲密的八个女人,其中两个女人曾经养过路飞

​海贼王,路飞最亲密的八个女人,其中两个女人曾经养过路飞

海贼王,路飞最亲密的八个女人,其中两个女人曾经养过路飞 海贼王里路飞无疑是男主角,作为男主角肯定会有很多亲密的女人,下面小编...

2025-09-30 09:04:22

​人工麝香 说说麝香和人工养麝

​人工麝香 说说麝香和人工养麝

人工麝香 说说麝香和人工养麝 麝香是一味传奇药物,也是古代宫廷常用的香料,当然不少宫斗剧也有以麝香为武器,后宫搞各种宫斗的。目...

2025-09-30 09:02:06

​云中君打野出什么装最厉害(典韦怎么打露娜)

​云中君打野出什么装最厉害(典韦怎么打露娜)

云中君打野出什么装最厉害(典韦怎么打露娜) 对面选择云中君或者娜可露露,目前选择上面英雄打野好?文|兔八哥聊游戏: 哈喽大家好,这...

2025-09-30 08:59:50

​丘处机为什么去牛家村(如果丘处机没有路过牛家村)

丘处机为什么去牛家村(如果丘处机没有路过牛家村) 前几天见到一个很有趣的问题,如果丘处机没有路过牛家村,那么射雕的发展会怎么...

2025-09-30 08:57:34

​罗茨风机选型样本(罗茨风机选型到底用哪些参数)

​罗茨风机选型样本(罗茨风机选型到底用哪些参数)

罗茨风机选型样本(罗茨风机选型到底用哪些参数) 罗茨风机选型的时候,会用到一些参数,否则是没法帮您正常选型的,那都需要哪些参...

2025-09-30 08:55:18

​那些说到心坎的文字

​那些说到心坎的文字

那些说到心坎的文字 1.爱情住在生活里面,却总生活在爱情里面。 2.被我们遗忘的,往往是最开心的;被我们想起的,往往是最痛苦的。 ...

2025-09-29 14:18:58

​厦门特色美食小吃有哪些(厦门有哪些好吃的小吃)

​厦门特色美食小吃有哪些(厦门有哪些好吃的小吃)

厦门特色美食小吃有哪些(厦门有哪些好吃的小吃) 厦门特色美食小吃有哪些,一起来看看吧!厦门的特色美食小吃种类繁多,其中最有名的...

2025-09-29 14:16:43

热门阅读
​男生的眼神像要吃了你(男生看你的眼神像要吃了你)

​男生的眼神像要吃了你(男生看你的眼神像要吃了你)

阅读量:208

​黑木耳烧豆腐做法(木耳烧豆腐,学会这个豆腐的特色做法,营养好吃又下饭,超

​黑木耳烧豆腐做法(木耳烧豆腐,学会这个豆腐的特色做法,营养好吃又下饭,超

阅读量:207

​不知道怎么挖比特币?挖矿流程在这里

​不知道怎么挖比特币?挖矿流程在这里

阅读量:207

​火车卧铺几点关灯,火车卧铺晚上几点关灯的?

​火车卧铺几点关灯,火车卧铺晚上几点关灯的?

阅读量:206

​丰田和宝马的关系(宝马z4和丰田supra关系)

​丰田和宝马的关系(宝马z4和丰田supra关系)

阅读量:206

​男生复合的冷淡期心理(两个小技巧帮你度过复合冷淡期)

​男生复合的冷淡期心理(两个小技巧帮你度过复合冷淡期)

阅读量:206

​哪些爱爱技巧非常经典 男人必学的爱爱妙招有哪些

​哪些爱爱技巧非常经典 男人必学的爱爱妙招有哪些

阅读量:205

​衡水老白干a中华42度多少钱一瓶(衡水老白干中华42度多少钱一瓶)

​衡水老白干a中华42度多少钱一瓶(衡水老白干中华42度多少钱一瓶)

阅读量:205

​苹果12手机费电快吗(苹果12手机费电快吗怎么解决)

​苹果12手机费电快吗(苹果12手机费电快吗怎么解决)

阅读量:205

​甘蔗不甜是什么原因 甘蔗不甜怎么处理

​甘蔗不甜是什么原因 甘蔗不甜怎么处理

阅读量:205

​刚结婚的新人有什么忌讳

​刚结婚的新人有什么忌讳

阅读量:205

​酒鬼酒黄坛十年的价格表和图片(酒鬼酒黄坛品鉴)

​酒鬼酒黄坛十年的价格表和图片(酒鬼酒黄坛品鉴)

阅读量:205

​追女生对她一直好有用吗?这样做才能追到她

​追女生对她一直好有用吗?这样做才能追到她

阅读量:205

​为何郭晶晶能得到霍家认可(为何说郭晶晶是下嫁霍家)

​为何郭晶晶能得到霍家认可(为何说郭晶晶是下嫁霍家)

阅读量:204

​白内障吃什么对眼睛好一点(白内障手术后应该怎么吃?注意这3点有助于视力恢

​白内障吃什么对眼睛好一点(白内障手术后应该怎么吃?注意这3点有助于视力恢

阅读量:204

​苹果连接电脑不出来信任选项怎么办(iphone连接电脑为什么没有信任电脑)

​苹果连接电脑不出来信任选项怎么办(iphone连接电脑为什么没有信任电脑)

阅读量:204

​沐浴露的功效有哪些

​沐浴露的功效有哪些

阅读量:204

​管代是什么意思啊

​管代是什么意思啊

阅读量:204

​手忙脚乱打一动物(形容手忙脚乱的动物)

​手忙脚乱打一动物(形容手忙脚乱的动物)

阅读量:204

​微信跟女孩子聊天怎么找话题(微信刚刚认识怎么聊天找话题)

​微信跟女孩子聊天怎么找话题(微信刚刚认识怎么聊天找话题)

阅读量:204

​久坐有什么不好呢 久坐的危害有什么呢

​久坐有什么不好呢 久坐的危害有什么呢

阅读量:204

​后发酵葡萄酒的适宜条件(发酵葡萄酒的 *** *** )

​后发酵葡萄酒的适宜条件(发酵葡萄酒的 *** *** )

阅读量:204